Запасные части ЧТЗ Запасные части ЧТЗ
Актобе
Например:
Актобе
Алдан
или
Выбрать автоматически
Актобе
Алдан
Алматы
Алчевск
Архангельск
Астана
Астрахань
Атырау
Баку
Балашиха
Барнаул
Белгород
Бердянск
Бишкек
Владивосток
Владикавказ
Воркута
Воронеж
Горловка
Грозный
Донецк
Екатеринбург
Иваново
Ижевск
Иркутск
Казань
Калининград
Каменск-Уральский
Караганда
Каховка
Кемерово
Киров
Комсомольск-на-Амуре
Костанай
Краснодар
Красноярск
Красный луч
Ленск
Луганск
Магадан
Магнитогорск
Макеевка
Махачкала
Мелитополь
Минск
Мирный (Якутия)
Москва
Мурманск
Нерюнгри
Нижневартовск
Нижний Новгород
Нижний Тагил
Новая каховка
Новокузнецк
Новосибирск
Новый Уренгой
Норильск
Ноябрьск
Нур-Султан
Омск
Оренбург
Ош
Павлодар
Пермь
Петрозаводск
Петропавловск
Петропавловск-Камчатский
Псков
Ростов-на-Дону
Салехард
Самара
Санкт-Петербург
Саратов
Севастополь
Семей
Симферополь
Сочи
Ставрополь
Сургут
Сыктывкар
Тараз
Ташкент
Токмак
Томск
Тында
Тюмень
Ульяновск
Усинск
Усть-Каменогорск
Уфа
Хабаровск
Ханты-Мансийск
Херсон
Челябинск
Чита
Шымкент
Экибастуз
Энергодар
Южно-Сахалинск
Якутск
Ваш город
Актобе
Войти
Запасные части к тракторам на одном сайте
+7 (932) 303-00-10
+7 (932) 303-00-10
г. Актобе, 41-й разъезд, д. 10а
Пн-Пт: 9:30-18:30 Cб-Вс: Выходной
Отправить заявку


Ремонт топливного фильтра тонкой очистки Т-170 Б-170 ТНВД трактора в Актобе


/
с НДС 20%
Описание

Снятие топливного фильтра тонкой очистки Т-170

Снимите заднюю крышку капота. Закройте кран топливного бака.

Установка фильтра тонкой очистки топлива

Рис. 146. Установка фильтра тонкой очистки топлива

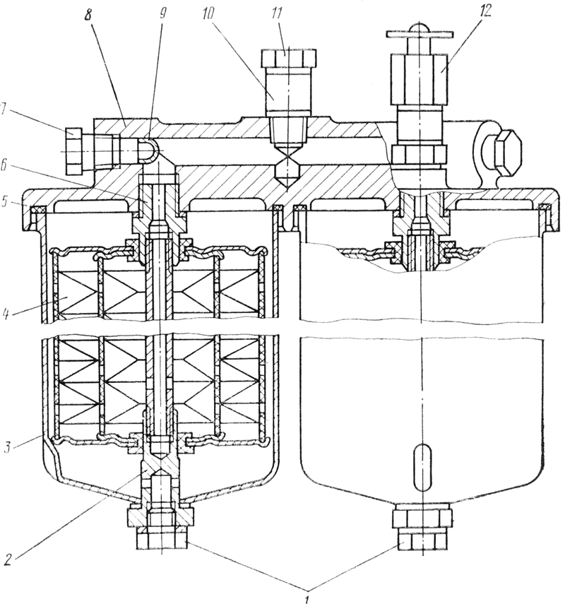
Слейте топливо из топливного фильтра, отвернув продувочный вентиль 1 ( рис. 146 ) и вывернув пробки 5. Отсоедините сливную трубку 2 от продувочного вентиля. Отсоедините топливопроводы 4 и 6 от корпуса фильтра 7. Отсоедините провод от датчика 3 указателя давления топлива. Отверните две гайки со шпилек крепления топливного фильтра к водоотводной трубе и снимите фильтр 7.

Фильтр тонкой очистки

Рис. 147. Фильтр тонкой очистки

Наденьте на болты 11 ( рис. 147 ) поворотного угольника защитные втулки 10 и заверните болты в резьбовые отверстия корпуса фильтра.

Разборка топливного фильтра тонкой очистки Т-170

Отверните пробки 1 и выверните стяжные болты 2 из штуцеров в корпусе фильтра. Снимите стаканы 3 и фильтрующие элементы 4 со стержней стяжных болтов. При необходимости ремонта или промывки выверните из корпуса 8 фильтра штуцеры 6, конические пробки 7, болты 11 поворотного угольника, продувочный вентиль 12.

Технические требования

  1. Допускается прогиб крышек фильтрующего элемента до 4 мм.

  2. Элемент фильтрующий второй ступени проверять на герметичность воздухом при давлении 2000 Па (0,02 кг/см²). Падение этого давления до нуля должна быть не менее чем за 15 с или до 1500 Па (0,015 кг/см²) за 3 с. Элемент перед проверкой замочить в чистом дизельном топливе в течение 5 мин, не менее.

  3. При давлении перед продувочным вентилем 0,098 МПа (1 кгс/см²):
    • при завернутой от руки ручке вентиля течь топлива через соединения вентиля не допускается;
    • при отвернутой на один оборот ручке вентиля течь топлива по сальниковому уплотнению не допускается.

Сборка топливного фильтра тонкой очистки Т-170

Перед сборкой фильтра тщательно промойте детали чистым дизельным топливом. Вверните в корпус 8 фильтра болты 11 поворотного угольника, надев на них защитные втулки 10. Вверните продувочный вентиль 12 с шайбой и прокладкой и конические пробки 7. Отверстия, закрываемые коническими пробками 7, используют для определения засоренности фильтрующих элементов. В них вворачиваются датчики для определения перепада давления в полостях фильтра. Перед датчиком впрессован жиклер 9 — гаситель пульсации топлива. Вверните в корпус фильтра штуцер 6 с шайбой, уложите в выточку корпуса уплотнительное кольцо 5. Наденьте на стержень стяжного болта шайбу, стакан 3, фильтрующий элемент 4 и вверните стержень 2 в штуцер на корпусе фильтра. Вверните пробку 1 с шайбой и прокладкой в стяжной болт фильтра. Аналогично соберите и закрепите на корпусе второй стакан с фильтрующим элементом.

Установка топливного фильтра тонкой очистки Т-170

Наденьте на шпильки прилива водоотводной трубы топливный фильтр 7 ( см. рис. 146 ) и закрепите его двумя гайками с пружинными шайбами. Подсоедините: топливопроводы 4 и 6 к корпусу фильтра; сливную трубку 2 к продувочному вентилю 1; провод к датчику 3 указателя давления топлива.

Ремонт топливного фильтра тонкой очистки