Запасные части ЧТЗ Запасные части ЧТЗ
Актобе
Например:
Актобе
Алдан
или
Выбрать автоматически
Актобе
Алдан
Алматы
Алчевск
Архангельск
Астана
Астрахань
Атырау
Баку
Балашиха
Барнаул
Белгород
Бердянск
Бишкек
Владивосток
Владикавказ
Воркута
Воронеж
Горловка
Грозный
Донецк
Екатеринбург
Иваново
Ижевск
Иркутск
Казань
Калининград
Каменск-Уральский
Караганда
Каховка
Кемерово
Киров
Комсомольск-на-Амуре
Костанай
Краснодар
Красноярск
Красный луч
Ленск
Луганск
Магадан
Магнитогорск
Макеевка
Махачкала
Мелитополь
Минск
Мирный (Якутия)
Москва
Мурманск
Нерюнгри
Нижневартовск
Нижний Новгород
Нижний Тагил
Новая каховка
Новокузнецк
Новосибирск
Новый Уренгой
Норильск
Ноябрьск
Нур-Султан
Омск
Оренбург
Ош
Павлодар
Пермь
Петрозаводск
Петропавловск
Петропавловск-Камчатский
Псков
Ростов-на-Дону
Салехард
Самара
Санкт-Петербург
Саратов
Севастополь
Семей
Симферополь
Сочи
Ставрополь
Сургут
Сыктывкар
Тараз
Ташкент
Токмак
Томск
Тында
Тюмень
Ульяновск
Усинск
Усть-Каменогорск
Уфа
Хабаровск
Ханты-Мансийск
Херсон
Челябинск
Чита
Шымкент
Экибастуз
Энергодар
Южно-Сахалинск
Якутск
Ваш город
Актобе
Войти
Запасные части к тракторам на одном сайте
+7 (932) 303-00-10
+7 (932) 303-00-10
г. Актобе, 41-й разъезд, д. 10а
Пн-Пт: 9:30-18:30 Cб-Вс: Выходной
Отправить заявку


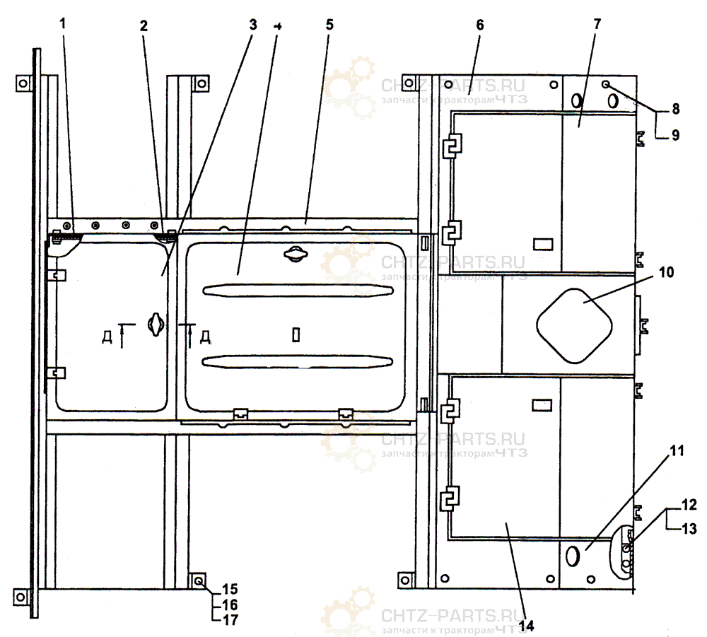
Рама опорная на ДЭТ-320


/
с НДС 20%
Описание
Рама опорная ДЭТ-320
Поз. Обозначение Наименование Кол.
- 749-30-6СП Рама опорная
1 749-30-115 Крышка 1
2 749-40-9247 Прокладка 1
3 749-30-139СП Крышка люка 1
4 749-30-138СП Крышка люка 1
5 749-30-137СП Рама опорная 1
6 749-30-130 Крыло 1
7 749-30-145-01СП Крышка 1
8 - Болт M10-6g×25 16
9 - Шайба 10 ОТ 65Г 09 16
10 749-30-144СП Кожух 1
11 749-30-121 Крыло 1
12 - Болт M10-6g×20 4
13 31308-1 Шайба 10.01.10.019 12
14 749-30-145СП Крышка 1
15 - Болт M12-6g×25 6
16 - Шайба 12 ОТ 65 Г09 6
17 3135-1 Шайба 12×2.01.10.019 6
Рама опорная